Construction

Joe Biden Dorm

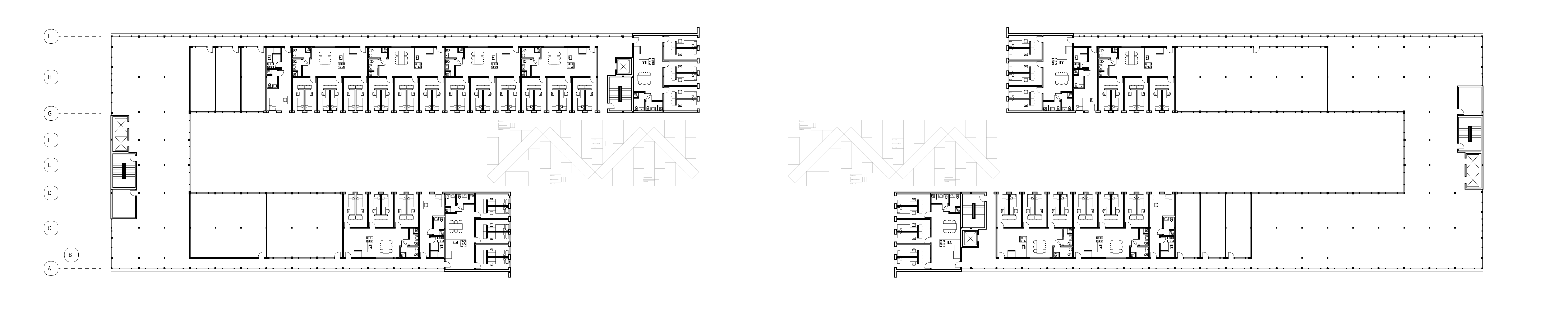
The project entails 250 beds with primarily suites that comprise of 3 split doubles, kitchens, and private bathrooms. RA single suites are also included on every floor. These programmatic elements were driven by a survey that my partner and I sent out to over 100 students.

The first main goal is to not block natural light to surrounding homes within the community. We felt this was important in order to promote a sense of community between the adjacent neighborhood and the dorm buildings. This goal was realized through dividing the structure into two blocks, then staggering one end of each of the U’s. From the daylight analysis this was a delicate balance between not blocking light, but also providing enough area within the building for the program.

In according to the responses of the survey, the first floor includes a gym, a dinning hall, and a cafe.

The third main goal was to provide different levels of community. This was realized through having 5 levels of community which include: room mate in the split double, suite mates, floor community, then each individual tower, then the whole complex as a community. It was important for students to be able to have a smaller community that they could connect with, but also allow them opportunities to branch out.