Design

Harlem Cultural Center

The project is a space created to bring Harlem together. Including both outdoor and indoor theater spaces, a local market, a covid testing center, and office spaces for various local organizations, this project is created for the people of Harlem.

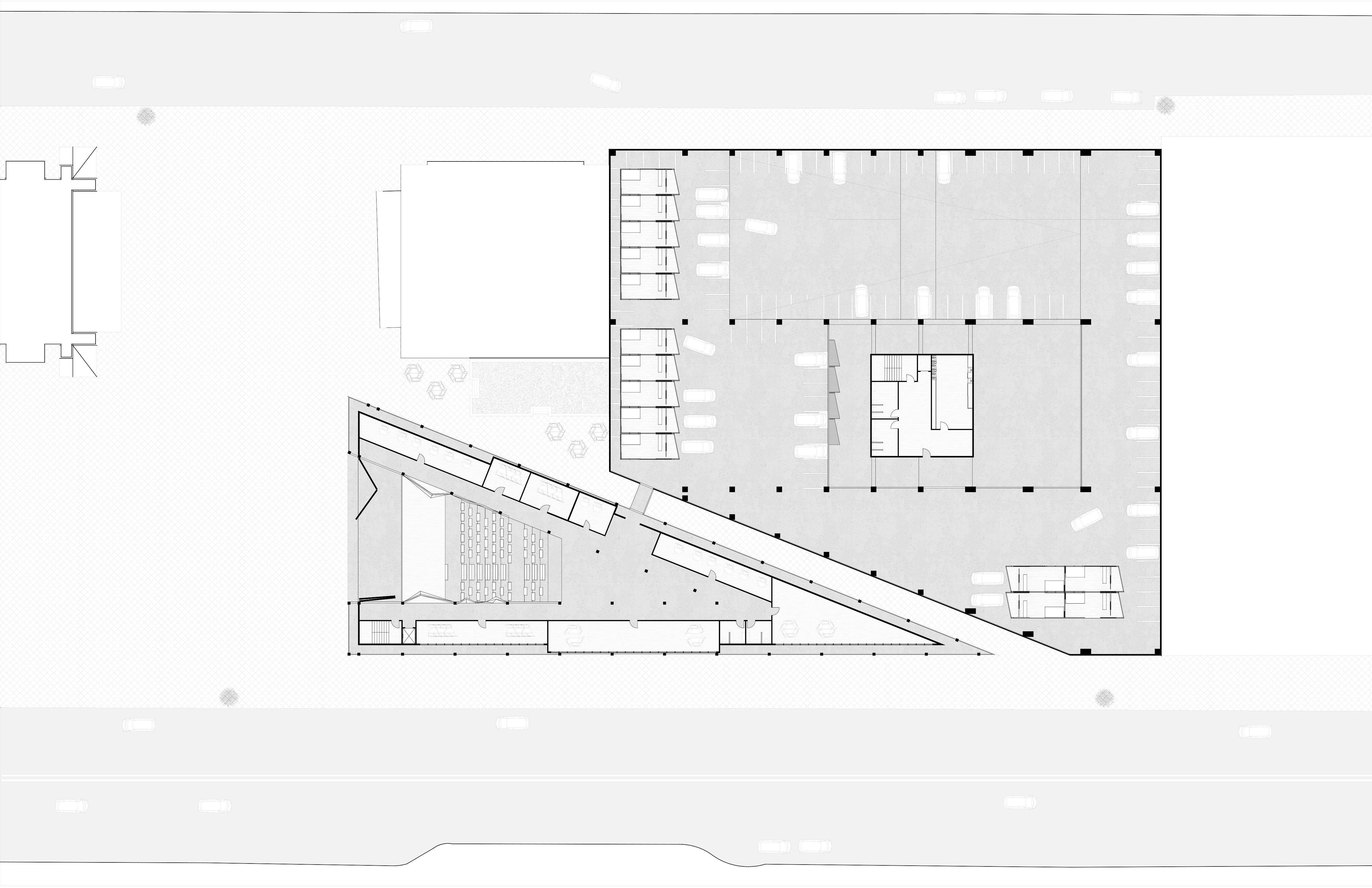
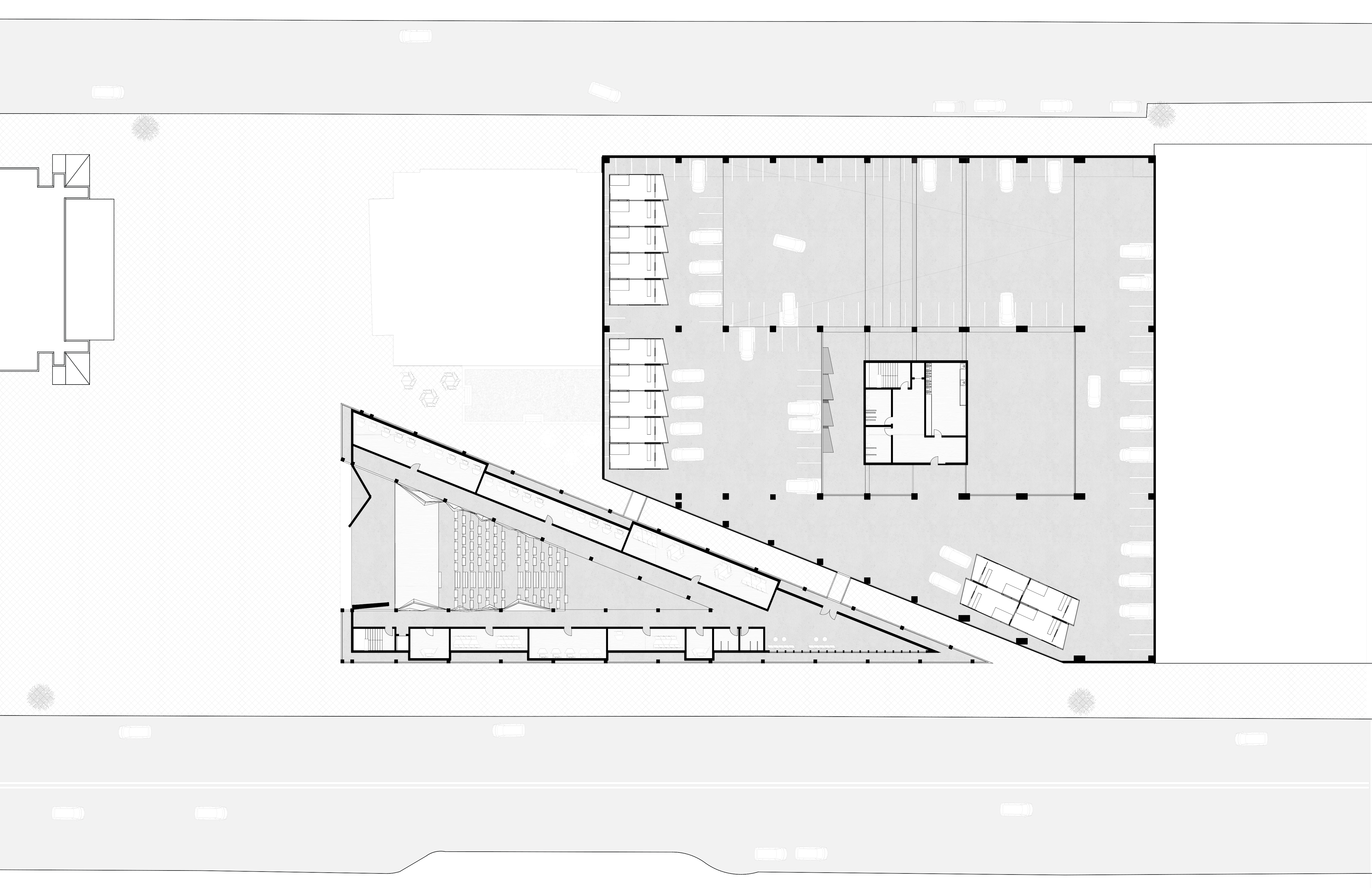
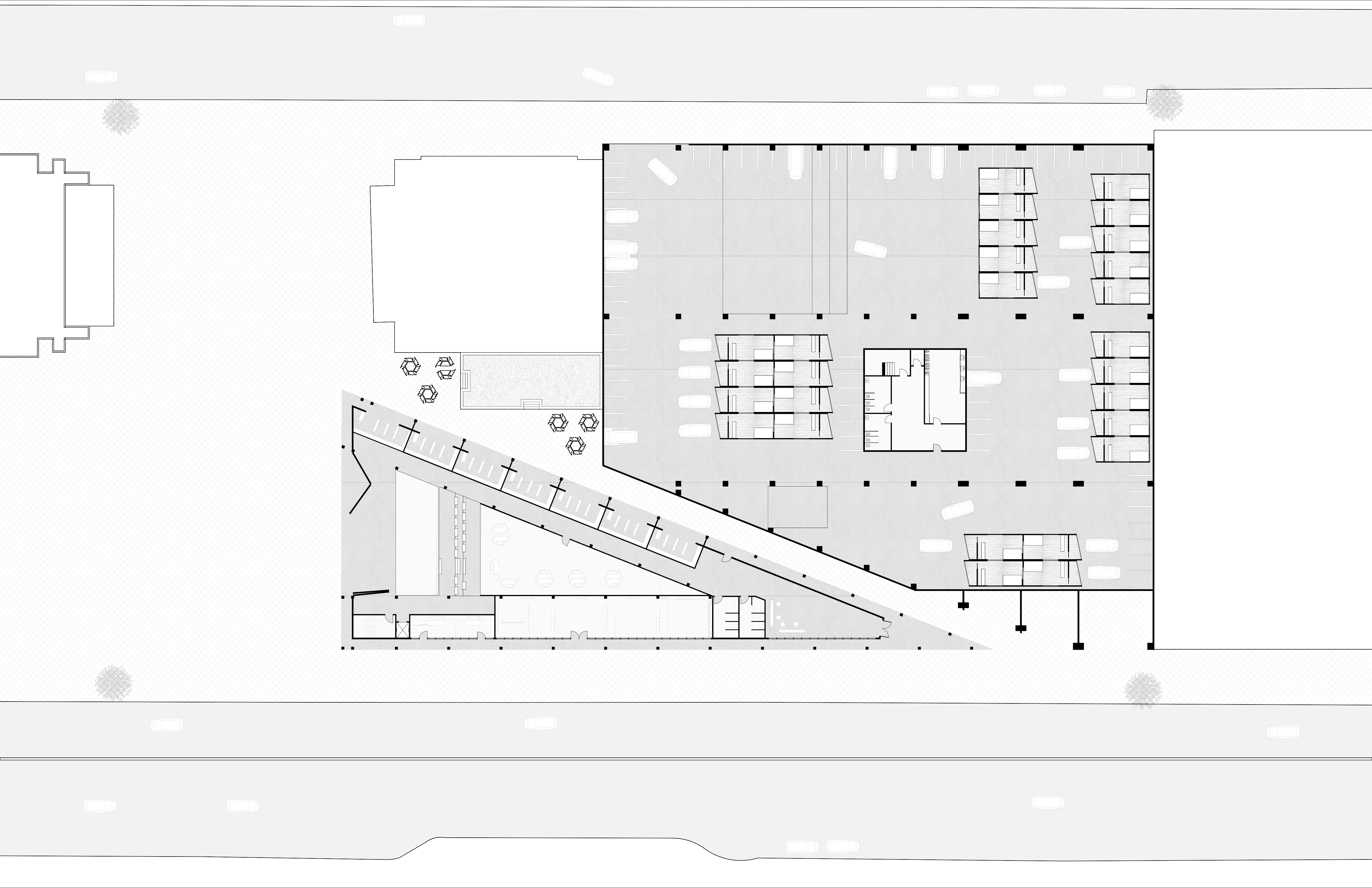
The site we chose to work on is located next to the Adam Clayton Powell Junior Office Building situated on 125th Street with Adam Clayton Powel Jr Blvd. This site has been the site for a multitude of protests, dating back as long as there have been protests. This project will continue in the legacy of the site. Taking on a triangular shape, we cut through the existing H&M Building and Parking structure to create the protest center. This shape allows for free circulation through the project. The separation of the new building from the existing garage structure both helps with the circulation and creates a space for the BLM Cultural Fair. A secondary plaza is also formed in this space allowing for a secondary gathering area outside.

Our overall organization of our design consists of the first floor housing our Social Justice Theater that opens up to the existing plaza for outdoor audience but also a theater seating that runs up towards the second floor. In addition our first floor included an Art Studio, Art Gallery Space, Covid Testing Center, and Pop Up Art spaces and circulation cores leading up to our second floor where additional aid programs would be situated such as Employment Aid, Housing Aid, Child Care Centers and Class Rooms, Lastly our 3rd and 4th Floors consist of office spaces. Each floor circulates around our atrium that faces down to the theater providing additional viewing spaces of the theater and outside balconies facing the garage space and the 125th Street allocating more protest spaces.

The Social Justice Theater dominates the first three floors of the atrium space that sits at the center of the design. With 69 seats in the theater itself, and standing room on all 7 floors of the center, the theater is large enough to accommodate hundreds of protesters entirely indoors, but can transform to become a centerpiece for large-scale protests in the Adam Clayton Powell Jr. plaza when the sliding doors are opened.